Agence Immobilière Hertrich et Kern Agence
Télécharger la fiche

Local professionnel 49 m²

Saverne (67700)
720 € / mois HC* * Hors charges Référence 231

A propos de ce bien

 

À louer – Local professionnel 49 m² – Quartier du Bouc d’Or, Saverne - Situation idéale en face de la gare

 

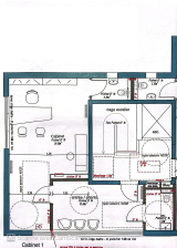
Situé dans le quartier recherché du Bouc d’Or à Saverne, ce local professionnel de 49 m² au 1er étage avec ascenseur offre des prestations idéales pour une activité tertiaire, libérale ou administrative.

 

Le bien comprend :

•Un espace accueil lumineux,

•Un bureau séparé avec point d'eau,

Accès PMR (personnes à mobilité réduite),

•Immeuble de construction récente (2019),

•Environnement professionnel calme et dynamique,

•Très bonne situation géographique, à proximité des axes routiers et des commodités.

 

Ce local est prêt à l’emploi, parfaitement adapté aux professions médicales, paramédicales, juridiques ou autres activités de bureau.

 

Localisation : Quartier du Bouc d’Or – Saverne

Surface : 49 m²

- Disposition : Accueil + 1 bureau

Accessibilité : PMR 

Immeuble : Année 2019

- Confort : climatisation réversible

 

Contactez-nous pour organiser une visite !


“Les informations sur les risques auxquels ce bien est exposé sont disponibles sur le site Géorisques : www. georisques. gouv. fr ”.

Caractéristiques de ce bien

Activités

  • Type de transaction Local professionnel

Agencement

  • Superficie m2 49 m²
  • Ascenseur 1

Equipements

  • Chauffage individuel : air pulsé (pompe à chaleur)

Secteur

  • Code postal 67700
  • Ville Saverne

Diagnostics & compléments

  • Année de construction 2019

Composition du bien

Rez-de-chaussée

  • accueil 12.60 m²
  • salle 29 m²
  • WC 2.20 m²
  • WC 3.20 m²

Diagnostics énergétiques

Consommation énergétique
A B C D E F G
Emission de gaz à effet de serre
A B C D E F G
DPE vierge

Informations financières

Loyer 720 € / mois
Honoraires charge locataire 1 100 €
Dont état des lieux Non renseigné
Dépot de garantie 1 440 €
Charges locatives (provision donnant lieu à régularisation annuelle) 50 €
Bail PROFESSIONNEL